ERSTBEZUG - Ruhig gelegenes Toskanahaus in Ziegelmassivbauweise in Tillmitsch
In Tillmitsch nahe des Ortszentrums wird gerade ein modernes Einfamilienhaus im Toskanahausstil in Ziegelmassivbauweise errichtet. Die hochwertige Ausstattung sorgt für modernen Komfort in zeitlosem Design. Das durchdachte Raumkonzept vermittelt zudem ein geräumiges Wohngefühl.
Beheizt wird mittels einer Luftwärmepumpe. Im Wohnbereich sorgen elektrische Raffstores für das richtige Maß an Sonneneinstrahlung, in den Zimmern sind Rollläden vorgerichtet.
Eine Klimaanlage wird fertig installiert, ebenso die Leerverrohrung für einen Glasfaser Internet Bezug.
Beheizt wird mittels einer Luftwärmepumpe. Im Wohnbereich sorgen elektrische Raffstores für das richtige Maß an Sonneneinstrahlung, in den Zimmern sind Rollläden vorgerichtet.
Eine Klimaanlage wird fertig installiert, ebenso die Leerverrohrung für einen Glasfaser Internet Bezug.
Hinweis Nebenkosten:
Grundbucheintragungsgebühr*: 1,1%
Grunderwerbssteuer: 3,5%
Kaufvertragserrichtung: 1%-3% zzgl. 20% USt.
*Derzeit ausgesetzt bis Juli 2026 bei Hauptwohnsitzanmeldung
ANFRAGE SENDEN
Grunderwerbssteuer: 3,5%
Kaufvertragserrichtung: 1%-3% zzgl. 20% USt.
*Derzeit ausgesetzt bis Juli 2026 bei Hauptwohnsitzanmeldung
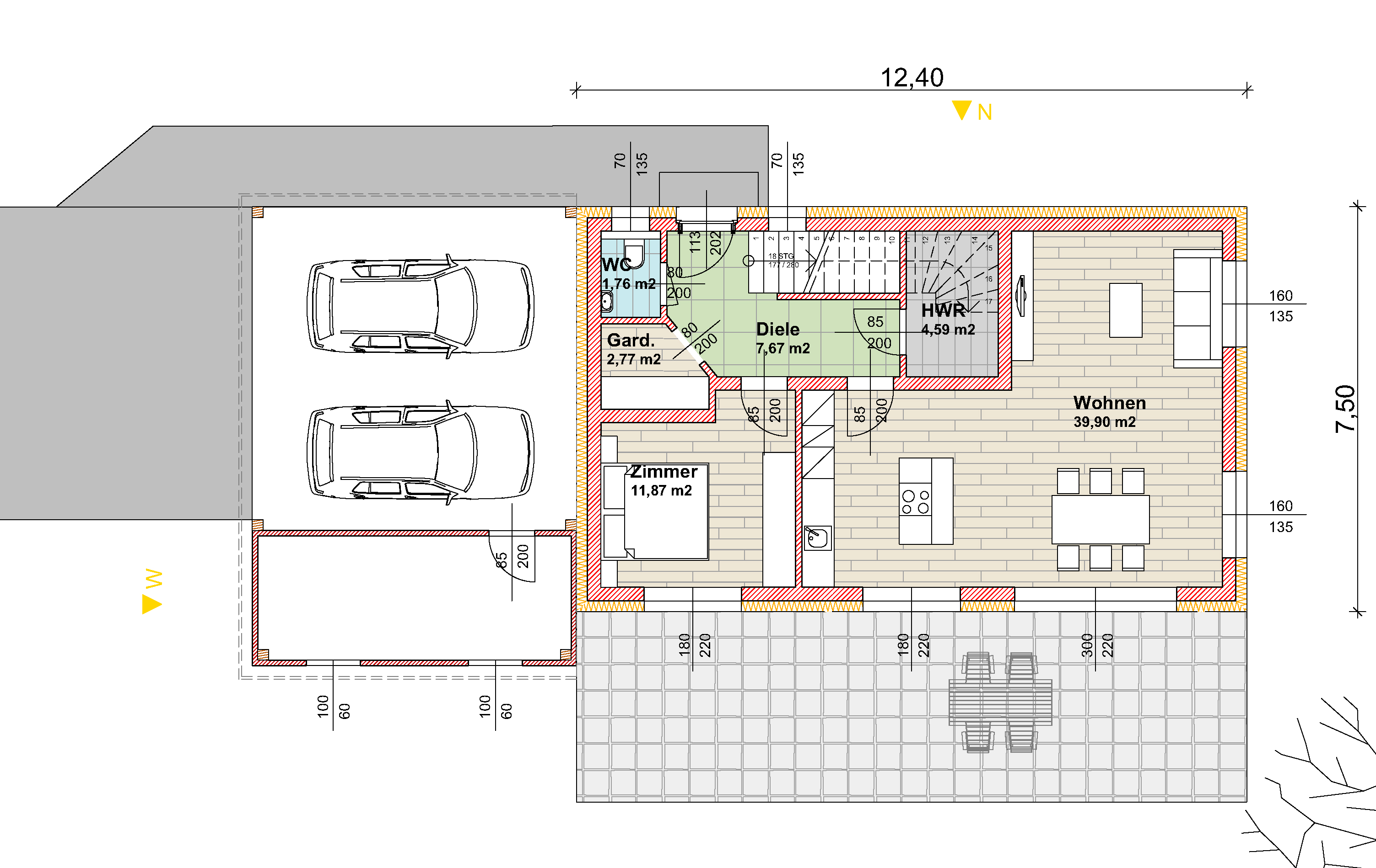
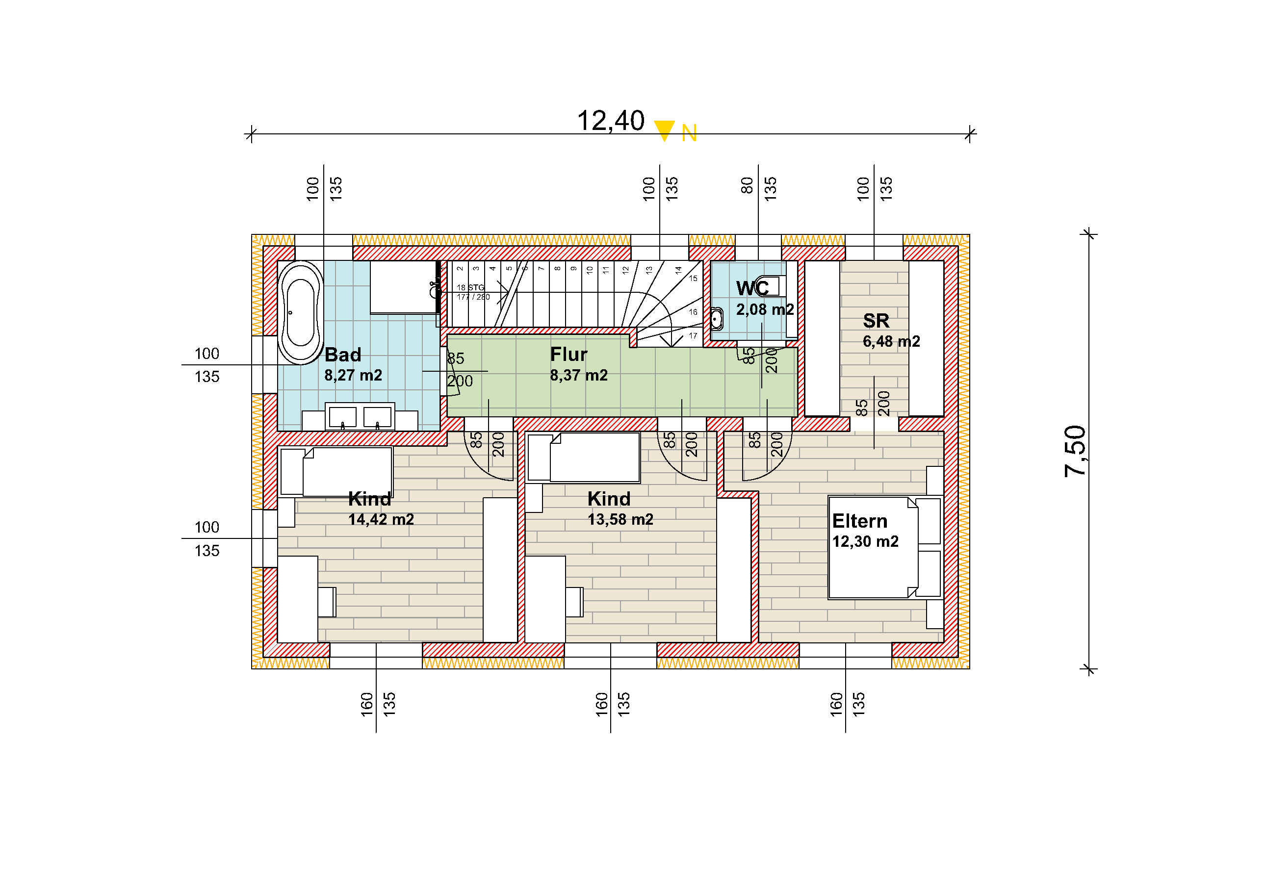
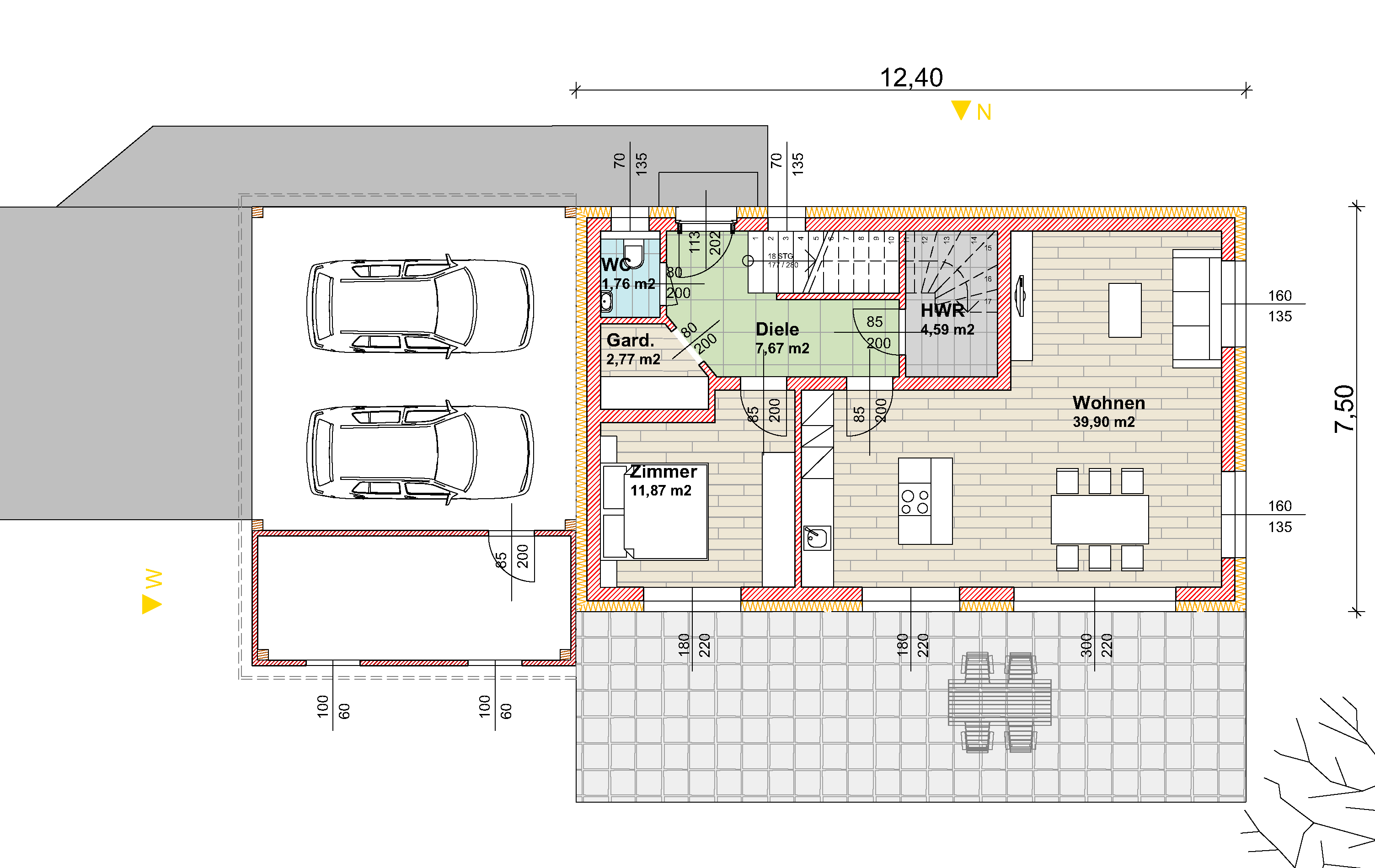
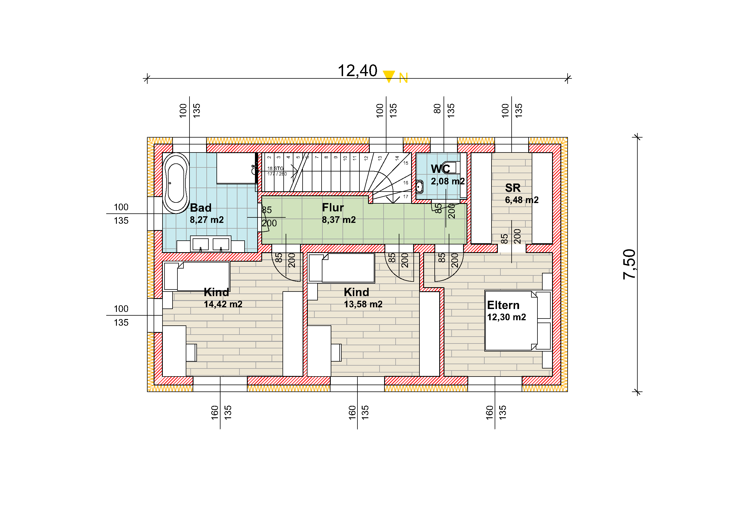
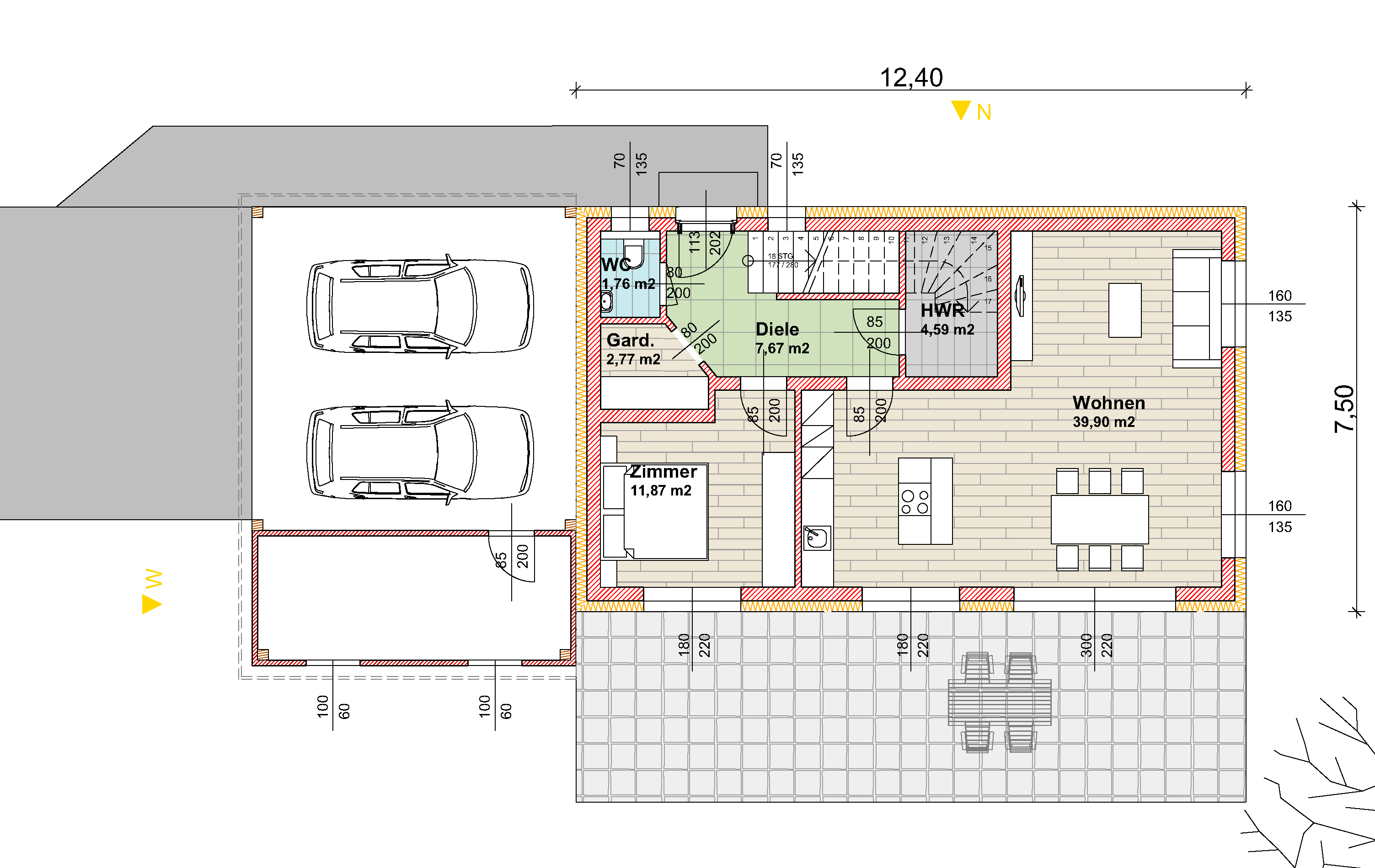
Eckdaten & Grundriss
Baujahr: 2025
Wohnfläche: ca. 138 m²
Grundfläche: ca. 798 m²
Zimmer: 4
Heizung: Luftwärmepumpe
Wohnfläche: ca. 138 m²
Grundfläche: ca. 798 m²
Zimmer: 4
Heizung: Luftwärmepumpe
Ausstattung
E-Ausweis
HWB (kWh/m²/Jahr): 42,5
HWB Energieklasse: B
fGEE: 0,59
fGEE Energieklasse: A+
HWB Energieklasse: B
fGEE: 0,59
fGEE Energieklasse: A+
