Stilvolles Wohnen in ruhiger Lage
Das geschmackvolle Mehrfamilienwohnhaus wurde Ende 2023 in Ziegelmassivbauweise errichtet und vereint klassische Stilelemente mit moderner Technik. Die hochwertige Ausstattung und die 2,80 m Raumhöhe sorgen für modernen Komfort in zeitlosem Design. Das durchdachte Raumkonzept ermöglicht ein geräumiges Wohngefühl trotz kompakter Fläche.
Beheizt wird die Anlage mittels einer Luftwärmepumpe. Darüber hinaus gibt es eine Gegensprechanlage, einen Kellerersatzraum mit ca.5m2, sowie einen Carport- und einen Freistellabstellplatz. Die großzügige Terrasse ist vollständig überdacht, somit kann man Möbel ganzjährig draußen stehen lassen. Außerdem bietet der großzügige Garten genügend Raum für Entspannung im Freien in ruhiger Atmosphäre. Eine Klimaanlage ist ebenfalls vorgerichtet.
Lage
8434 Tillmitsch
Sonstiges
Die Wohnung wird auf 3 Jahre befristet vermietet, eine Verlängerung ist bei gutem Mietverhältnis natürlich möglich und erwünscht.
Das geschmackvolle Mehrfamilienwohnhaus wurde Ende 2023 in Ziegelmassivbauweise errichtet und vereint klassische Stilelemente mit moderner Technik. Die hochwertige Ausstattung und die 2,80 m Raumhöhe sorgen für modernen Komfort in zeitlosem Design. Das durchdachte Raumkonzept ermöglicht ein geräumiges Wohngefühl trotz kompakter Fläche.
Beheizt wird die Anlage mittels einer Luftwärmepumpe. Darüber hinaus gibt es eine Gegensprechanlage, einen Kellerersatzraum mit ca.5m2, sowie einen Carport- und einen Freistellabstellplatz. Die großzügige Terrasse ist vollständig überdacht, somit kann man Möbel ganzjährig draußen stehen lassen. Außerdem bietet der großzügige Garten genügend Raum für Entspannung im Freien in ruhiger Atmosphäre. Eine Klimaanlage ist ebenfalls vorgerichtet.
Lage
8434 Tillmitsch
Sonstiges
Die Wohnung wird auf 3 Jahre befristet vermietet, eine Verlängerung ist bei gutem Mietverhältnis natürlich möglich und erwünscht.
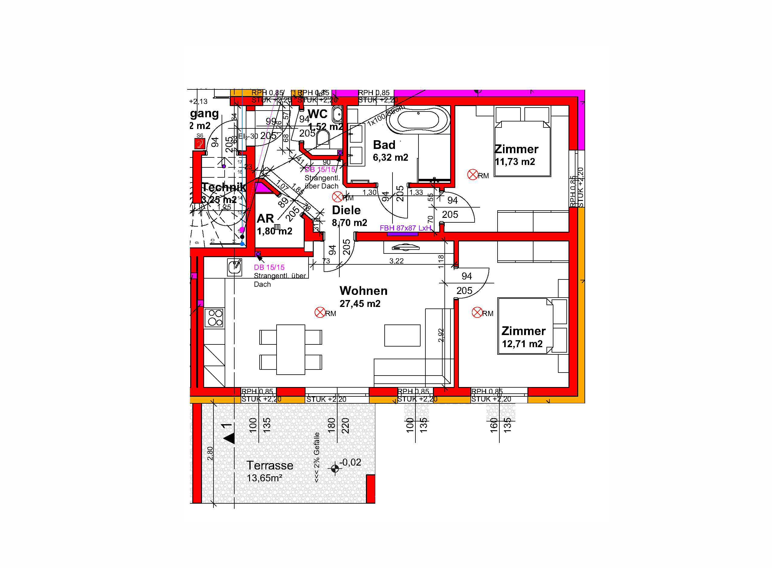
Eckdaten & Grundriss
Baujahr: 2023
Wohnfläche: ca. 70 m²
Heizung: Fußbodenheizung - Luftwärmepumpe
Zimmer: 3
Bäder: 1
WC: 1
Überdachte Terrasse: ca. 14 m²
Garten: ca. 179 m²
Hauptmietzins inkl. 10% USt.: EUR 963,26
Betriebskosten inkl. 10 % USt.: EUR 151,25
Heizkosten inkl. 20% USt.: EUR 75,00
Miete PKW inkl. 20% USt.: EUR 60,49
Gesamtmiete inkl. USt.: EUR 1.250,00
Wohnfläche: ca. 70 m²
Heizung: Fußbodenheizung - Luftwärmepumpe
Zimmer: 3
Bäder: 1
WC: 1
Überdachte Terrasse: ca. 14 m²
Garten: ca. 179 m²
Hauptmietzins inkl. 10% USt.: EUR 963,26
Betriebskosten inkl. 10 % USt.: EUR 151,25
Heizkosten inkl. 20% USt.: EUR 75,00
Miete PKW inkl. 20% USt.: EUR 60,49
Gesamtmiete inkl. USt.: EUR 1.250,00
Ausstattung
Parkett, Fließen
E-Ausweis
HWB (kwh/m2/Jahr): 35,8
HWB Klasse: B
fGEE: 0,63
fGEE Klasse: A+
HWB Klasse: B
fGEE: 0,63
fGEE Klasse: A+