Zentrale 3-Zimmer-Altbauwohnung mit Charme – 63,71 m² in Leoben
Altbau-Flair trifft auf Stadtlage: Diese gepflegte 3-Zimmer-Wohnung im 1. Stock eines um 1900 errichteten Gebäudes befindet sich direkt im Zentrum von Leoben – und bietet die perfekte Kombination aus historischem Charakter und urbanem Lebensgefühl.
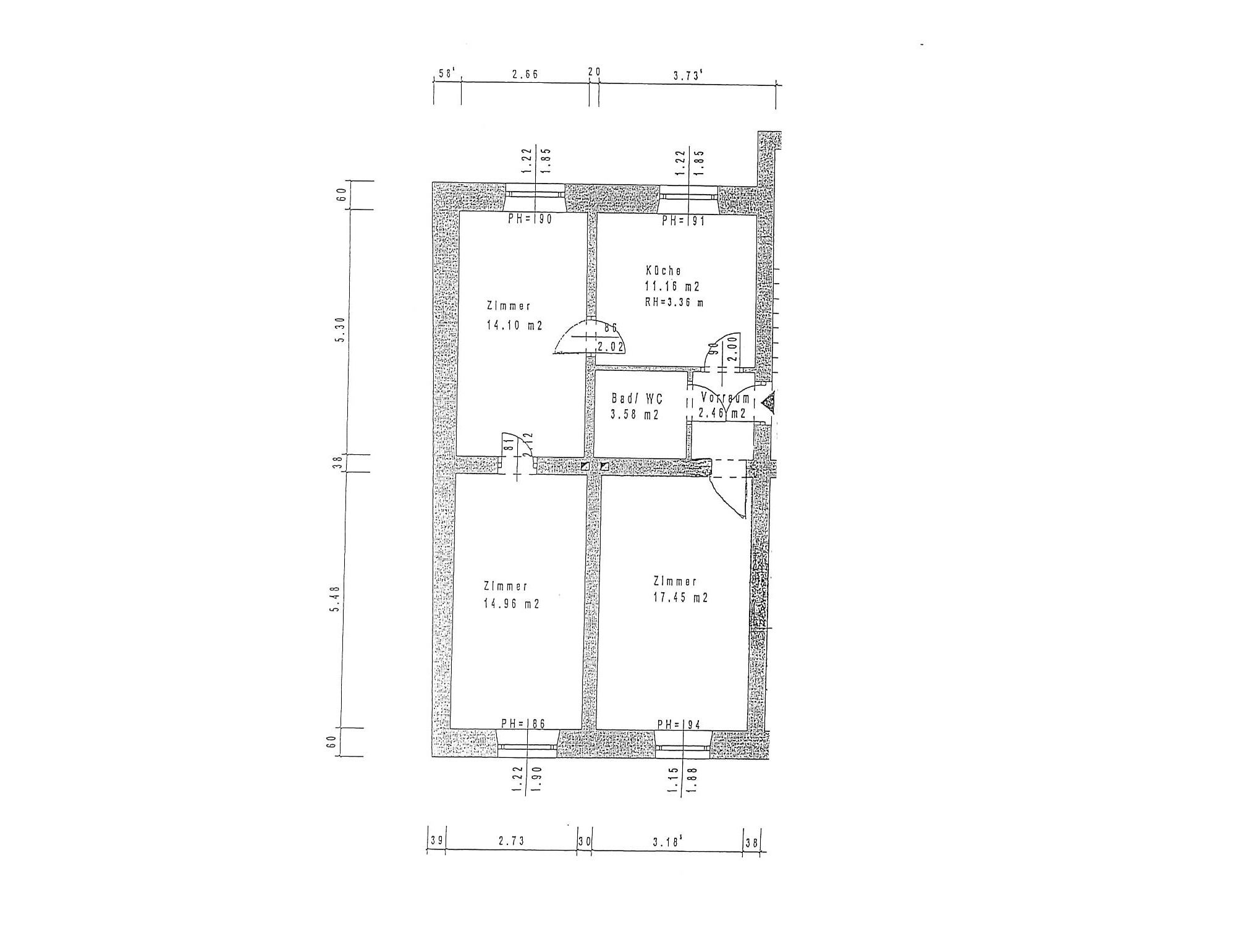
Wohnfläche: ca. 63,71 m²
Lage: 1. Stock, Nord-/Südausrichtung
Details: Böden in Küche und Vorraum werden aktuell erneuert!
Anbindung: Einkauf, Gastronomie & öffentlicher Verkehr in Gehweite
Altbau-Flair trifft auf Stadtlage: Diese gepflegte 3-Zimmer-Wohnung im 1. Stock eines um 1900 errichteten Gebäudes befindet sich direkt im Zentrum von Leoben – und bietet die perfekte Kombination aus historischem Charakter und urbanem Lebensgefühl.
Wohnfläche: ca. 63,71 m²
Lage: 1. Stock, Nord-/Südausrichtung
Details: Böden in Küche und Vorraum werden aktuell erneuert!
Anbindung: Einkauf, Gastronomie & öffentlicher Verkehr in Gehweite
Hinweis Nebenkosten:
Grundbucheintragungsgebühr*: 1,1%
Grunderwerbssteuer: 3,5%
Kaufvertragserrichtungskosten: 1-3% zzgl. USt.
Maklerprovision: 3,6%
*Derzeit ausgesetzt bis Juli 2026 bei Hauptwohnsitzanmeldung
ANFRAGE SENDEN
Grunderwerbssteuer: 3,5%
Kaufvertragserrichtungskosten: 1-3% zzgl. USt.
Maklerprovision: 3,6%
*Derzeit ausgesetzt bis Juli 2026 bei Hauptwohnsitzanmeldung
Eckdaten & Grundriss
Kaufpreis: EUR 99.000
Betriebskosten inkl. 10% USt.: EUR 141,83
Heizkosten inkl. 20% USt.: EUR 149,00
Rücklage: EUR 68,00
Monatliche Kosten inkl. USt.: EUR 358,83
Betriebskosten inkl. 10% USt.: EUR 141,83
Heizkosten inkl. 20% USt.: EUR 149,00
Rücklage: EUR 68,00
Monatliche Kosten inkl. USt.: EUR 358,83
Ausstattung
E-Ausweis
HWB (kwh/m2/Jahr): 156,5
HWB Klasse: E
fGEE: 2,16
fGEE Klasse: D
HWB Klasse: E
fGEE: 2,16
fGEE Klasse: D