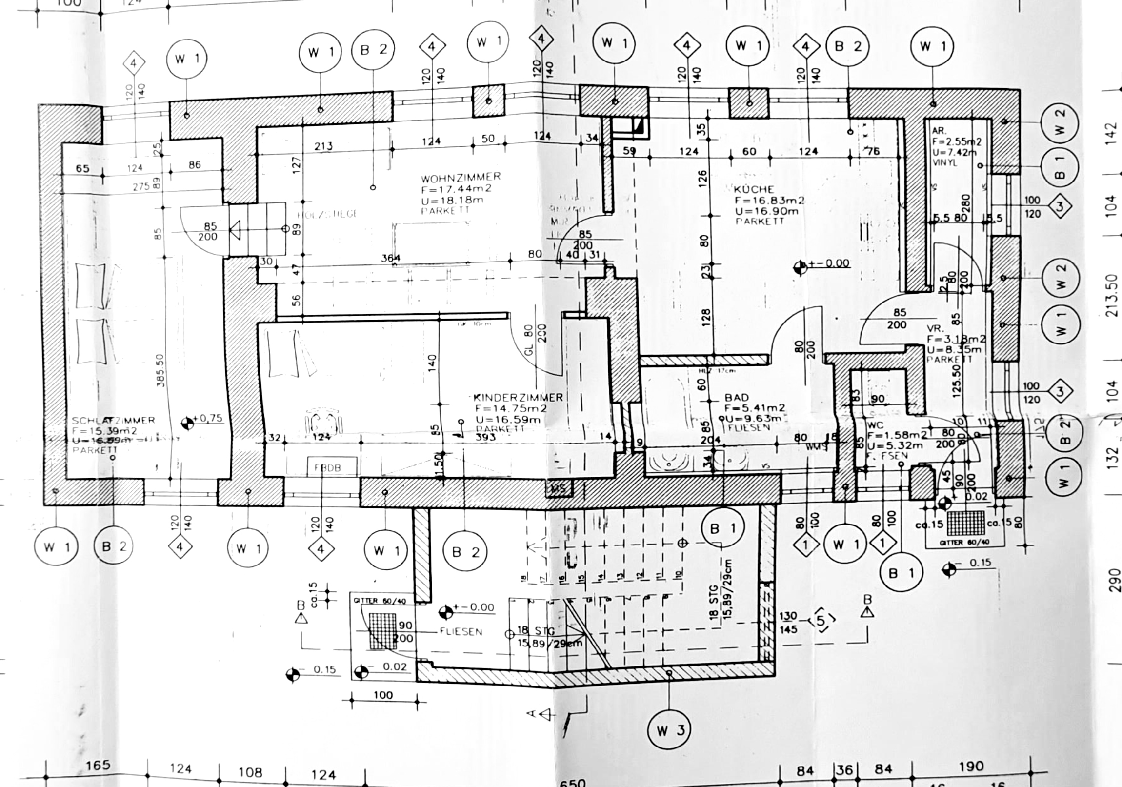
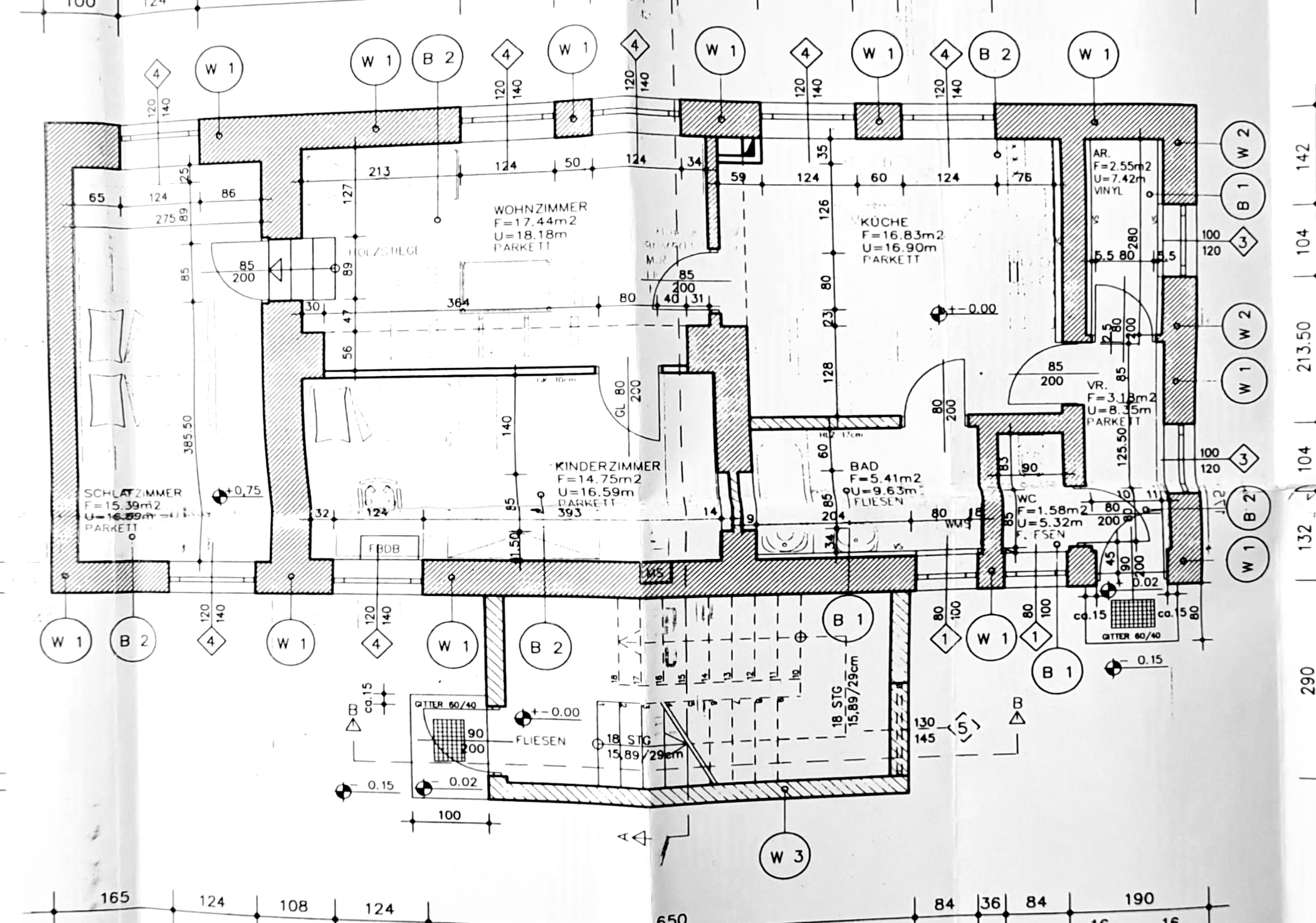
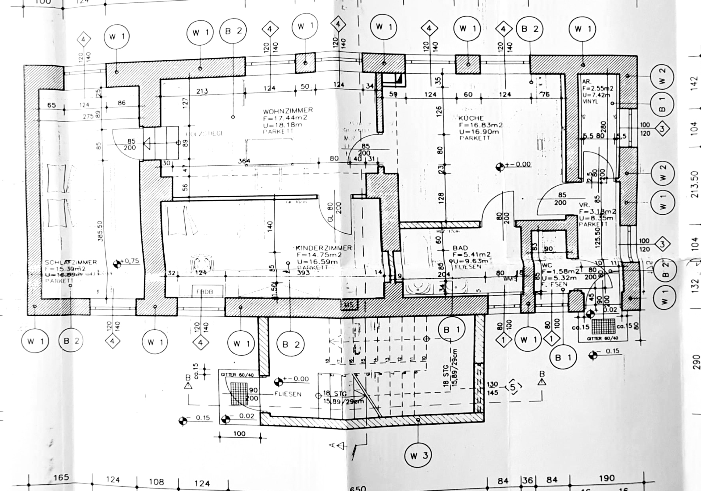
Zum Verkauf gelangt ein gepflegtes Mehrfamilienhaus mit insgesamt ca. 241,30 m² Wohnfläche in zentraler Lage von Leoben.
Das Haus besteht aus drei Wohneinheiten, von denen aktuell alle Wohnungen vermietet sind. Die Wohnung im Dachgeschoss wird Ende November frei und kann sofort bezogen oder neu vermietet werden.
Die monatlichen Nettomieteinnahmen belaufen sich derzeit auf € 1.156,71.
1996 wurde das Haus das letzte Mal saniert und ist daher in gutem Zustand.
Das Objekt eignet sich sowohl als Anlageimmobilie mit laufenden Mieteinnahmen als auch für Eigennutzer, die langfristig eine Kombination aus Wohnen und Vermieten suchen.
Ausstattung
Massivbauweise
Gesamtwohnfläche ca. 241,30 m²
3 vermietete Einheiten
Das Haus besteht aus drei Wohneinheiten, von denen aktuell alle Wohnungen vermietet sind. Die Wohnung im Dachgeschoss wird Ende November frei und kann sofort bezogen oder neu vermietet werden.
Die monatlichen Nettomieteinnahmen belaufen sich derzeit auf € 1.156,71.
1996 wurde das Haus das letzte Mal saniert und ist daher in gutem Zustand.
Das Objekt eignet sich sowohl als Anlageimmobilie mit laufenden Mieteinnahmen als auch für Eigennutzer, die langfristig eine Kombination aus Wohnen und Vermieten suchen.
Ausstattung
Massivbauweise
Gesamtwohnfläche ca. 241,30 m²
3 vermietete Einheiten
Hinweis Nebenkosten:
Grundbucheintragungsgebühr: 1,1%
Grunderwerbssteuer: 3,5%
Kaufvertragserrichtungskosten: 1-3% zzgl. USt.
Maklerprovision: 3,6%
ANFRAGE SENDEN
Grunderwerbssteuer: 3,5%
Kaufvertragserrichtungskosten: 1-3% zzgl. USt.
Maklerprovision: 3,6%
Eckdaten & Grundriss
Kaufpreis: EUR 300.000
Gesamtmieteinnahmen netto: EUR 1.156,71
Betriebskosten netto: EUR 571,88
USt.: EUR 172,86
Gesamtmieteinnahmen netto: EUR 1.156,71
Betriebskosten netto: EUR 571,88
USt.: EUR 172,86
Ausstattung
E-Ausweis
HWB (kwh/m2/Jahr): 156,5
HWB Klasse: E
fGEE: 2,16
fGEE Klasse: D
HWB Klasse: E
fGEE: 2,16
fGEE Klasse: D
